Project Grote Baan - Kasteelstraat (Beersel)
Locatie
Algemene informatie
Ben je geïnteresseerd? Kijk naar "Ik wil kopen" voor alle nodige informatie en neem contact op. Er zijn momenteel nog 2 woningen te koop met elk 4 slaapkamers.
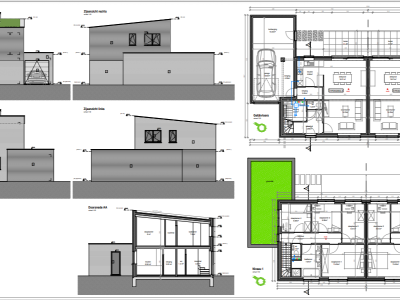
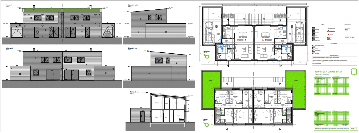
12 koopwoningen
- Volledig instapklaar met ingerichte keuken en badkamer. (Inspraak op de afwerking is niet mogelijk omwille van de kostprijs)
- 12 driegevelwoningen:
- 8 woningen met 4 slaapkamers, woonoppervlakte +-113 m2
- 2 woningen met 4 slaapkamers, woonoppervlakte +-119 m2
- 2 woningen met 3 slaapkamers, woonoppervlakte +-99 m2
- Elke woning heeft een terras met tuin. Diepte van de tuin +- 10 meter.
- Elke woning beschikt over een woonkamer, eetkamer, keuken, badkamer, gastentoilet, berging en een garage of carport.
Technische informatie
- Ontwerper: HELON ARCHITECTEN
- Aannemer: Elpers
- Conform aan de hedendaagse EPB-normering: E-peil 48/49
- Platte daken met zonnepanelen (minimaal 3000Wp)
- Regenwaterput van 5000 liter
- Vloerverwarming
- Ventilatie type C
Verloop werken, plaats op de wachtlijst en communicatie
- Eind werken: einde 2024 (behoudens vertragingen) - start verkoop: voorjaar 2025
- Eerste kijkdag: 3 oktober 2024
- In september 2023 werd de eerste lijst opgemaakt van kandidaten met voorrang. Zij kennen hun plaats op de wachtlijst.
- Kandidaten die zich nadien hebben ingeschreven of kandidaten zonder voorrang, krijgen hun plaats pas later, wanneer we een nieuwe lijst opmaken.
Brieven verstuurd naar de kandidaten
- Brief 11/10/2023 - kandidaat met voorrang (114.23 KB) "pdf"
- Brief 11/10/2023 - kandidaat zonder voorrang (193.87 KB) "pdf"
- Eind mei/begin juni: een stand van zaken en verdere timing